The Bi-Fold Plus is a thermally broken aluminum bi-fold door system by Cortizo engineered for large glazed openings where natural light, accessibility, and architectural refinement are non-negotiable. With a slim 110 mm central meeting section, a 45 mm polyamide thermal break, and glazing capacity up to 48 mm for double or triple IGU, it achieves a thermal transmittance as low as 0.8 W/m²K alongside Class 4 air permeability and PAS 24 enhanced security certification. Configurable with up to 14 folding leaves in a single set — opening inward or outward — and supporting sash heights up to 118″ and weights up to 265 lb, the Bi-Fold Plus is purpose-built for residential and commercial façades that demand both performance and presence.
Performance Ratings
- ● Thermal Transmittance (Uw): Down to ~0.8 W/m²K (≈ 0.14 Btu/h·ft²·°F)
- ● Air Permeability: Class 4 — EN 12207
- ● Water Tightness: Class E750 — EN 12208
- ● Wind Resistance: Class C3 — EN 12210
- ● Security: PAS 24 — Enhanced security certification
- ● Durability: Up to 50,000 operating cycles tested
Available Finishes
- ● Powder Coat — Full RAL palette & special finishes
- ● Wood-Effect — Decorative laminate finishes
- ● Dual-Colour / Bi-Colour — Different interior & exterior finishes available
Profile & Construction
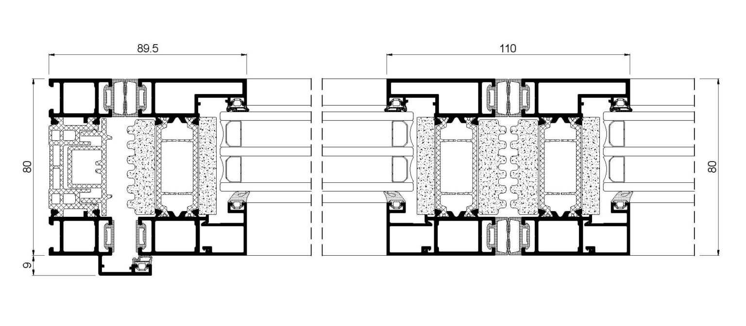
- ● Frame Depth: ~80 mm (3.15″)
- ● Sash Profile Depth: ~80 mm (3.15″)
- ● Profile Wall Thickness: ~1.8 mm (0.071″)
- ● Thermal Break Width: ~45 mm (1.77″)
- ● Central Meeting Section: ~110 mm (4.33″)
- ● Max Glazing Thickness: ~48 mm (1.89″)
- ● Min Glazing Thickness: ~25 mm (0.98″)
Configurations
- ● Folding Leaves: Up to 14 sashes in a single fold set
- ● Opening Direction: Inward or outward folding
- ● Threshold Options: Low threshold available for accessibility compliance
Maximum Dimensions & Capacity Per Sash
| Specification | Imperial | Metric |
|---|---|---|
| Maximum Sash Width | ~47.2″ (3 ft 11.2 in) | ~1,200 mm |
| Maximum Sash Height | ~118.1″ (9 ft 10.1 in) | ~3,000 mm |
| Maximum Sash Weight | ~265 lb | ~120 kg |
| Maximum Leaves Per Set | Up to 14 folding panels | |
CORTIZO — Authorized Cortizo dealer — European-engineered aluminum systems.




Reviews
There are no reviews yet.